19

Nízkoenergetický dům
Plutos

Obytná kapacita 4–5
Dispozice 4+kk / 5+kk
Podlahová plocha 126,10 m2
Zastavěná plocha 154,50 m2
Zvolte typ střechy
Prohlédnout dům Virtuální prohlídka
Nezávazná poptávka domu Kontaktujte nás
Nizkoenergetický dům
Dům k dokončení se základovou deskou. Co obsahuje dům k dokončení?
3 294 300 Kč
Ceny jsou orientační a bez DPH (12 %).
Nizkoenergetický dům
Dům k dokončení se základovou deskou. Co obsahuje dům k dokončení?
3 328 800 Kč
Ceny jsou orientační a bez DPH (12 %).


sedlová střecha valbová střecha Bungalov Plutos Bungalov Plutos

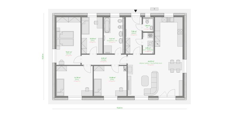
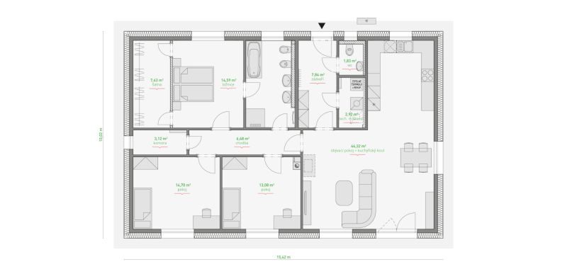
Dům větší velikostní kategorie pro komfortní bydlení 4–5 členné rodiny

Velký přízemní dům Plutos nabízí pohodlné bydlení pro 4-5 osob na 126 m2. Kromě volby typu střechy (sedlová nebo valbová) nabízí v typovém provedení také 2 varianty dispozice se 4 nebo 5 pokoji. Díky možnosti zrcadlového provedení dispozice umožňuje výstavbu na různě orientovaných pozemcích bez rizika ztráty tepelných zisků, které jsou důležité pro dosažení nízkoenergetického standardu a ideální prosvětlení domu.

Dispozice domu Plutos

Plutos je moderní, prostorný a dispozičně otevřený bungalov, který odpovídá na požadavky současných trendů bydlení. Kromě průchodu do hlavního obytného prostoru zajišťuje zádveří přístup na samostatné WC a do technické místnosti s pračkou, sušičkou a kompaktní jednotku, jejíž součástí je tepelné čerpadlo, ventilační jednotka s rekuperací a příprava teplé vody. Velký obývací pokoj je propojený s prostornou kuchyní a jídelnou. Místnost s půdorysem do “L” s výměrou přes 44 m2 nabízí velkorysý prostor i pro velkou rodinu. Díky dvoukřídlým francouzským dveřím, které jsou situovány v obývací části je zajištěno nejen příjemné proslunění pokoje, ale také pohodlný přístup na terasu.

Z obývací části vedou dveře do centrální chodby, která spojuje všechny ostatní místnosti v domě. Nechybí plnohodnotná koupelna s vanou, sprchovým koutem, dvěma umyvadly, WC i bidetem. U varianty 4+kk sousedí s velkou ložnicí, v níž se počítá s vybudováním prostorné šatny. Další úložné prostory přístupné z chodby nabízí komora vedle ložnice. Další dvě místnosti mohou sloužit jako dětské pokoje. U varianty 5+kk vznikl vedle koupelny malý pokoj, který lze využít jako dětský, pokoj pro hosty nebo pracovnu. Další tři pokoje s výměrou od 13 do 15,5 m2 jsou vhodné jako ložnice, respektive dětské pokoje.

Ke stažení
  • Katalogový list domu (PDF) Stáhnout
  • Ceník nízkoenergetických domů - dům k dokončení (PDF) Stáhnout
nízkoenergetické domy

Výhody nízkoenergetického domu

  • Řízené větrání a rekuperace
  • Kompletní typový projekt zdarma
  • Tepelné čerpadlo a podlahové topení

Co obsahuje dům k dokončení?

  • Základová deska
  • Hrubá stavba
  • Krov/střecha
  • Výplně

Jak probíhá stavba domu?

Více informací

Nezávazná poptávka domu

Všechny poskytnuté údaje jsou uchovávány a zpracovávány v souladu se zákonem č. 101/2000 Sb., o ochraně osobních údajů. Tazatel uděluje souhlas se zpracováním poskytnutých osobních údajů společnosti Liapor s.r.o., se sídlem č.p. 176, 357 35 Vintířov, IČ: 468 82 324, jakožto provozovateli webových stránek a to po dobu do odvolání souhlasu. Tazatel dále uděluje souhlas, aby osobní údaje byly zpracovány zpracovatelem, zejména společností Studio Fresh Net, s.r.o., případně dalšími pověřenými zpracovatelskými společnostmi, jež provozovatel pověří. Tazatel též potvrzuje, že se seznámil s právy dle § 11 a § 21 zákona č. 101/2000 Sb., tj. zejména že má právo přístupu k osobním údajům a právo na opravu těchto osobních údajů, blokování nesprávných osobních údajů, jejich likvidaci, atd. Udělení souhlasu je zcela dobrovolné a lze jej kdykoli bezplatně na adrese provozovatele odvolat. Více informací

Prohlédněte si podobné domy