10

Nízkoenergetický dům
Pallas

Obytná kapacita 4–5
Dispozice 4+kk
Podlahová plocha 116,14 m2
Zastavěná plocha 143,50 m2
Zvolte typ střechy
Prohlédnout dům Virtuální prohlídka
Nezávazná poptávka domu Kontaktujte nás
Nizkoenergetický dům
Dům k dokončení se základovou deskou. Co obsahuje dům k dokončení?
3 212 800 Kč
Ceny jsou orientační a bez DPH (12 %).
Nizkoenergetický dům
Dům k dokončení se základovou deskou. Co obsahuje dům k dokončení?
3 233 200 Kč
Ceny jsou orientační a bez DPH (12 %).


sedlová střecha valbová střecha Bungalov Pallas Bungalov Pallas

Dům střední velikostní kategorie pro komfortní bydlení 4–5 členné rodiny

Pallas je středně velký přízemní dům, který díky podlahové ploše 116 m2 a dispozici 4+kk uspokojí potřeby až pětičlenné rodiny. Nápadité řešení dispozice nabízí i možnost pro nerušené soužití více generací.

Podobně jako u dalších bungalovů z nabídky lze u domu Pallas vybírat v rámci typového projektu z variant se sedlovou nebo valbovou střechou. Díky tomu skvěle zapadne do nově vznikajících lokalit i původní zástavby. Ještě větší variabilita při umístění na pozemek a správné orientaci domů vůči světovým stranám je zajištěna díky možnosti zrcadlového převrácení dispozice.

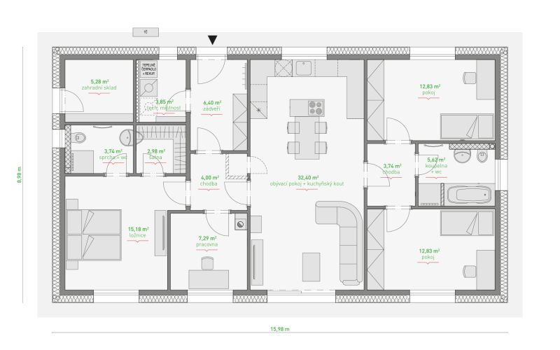
Dispozice domu Pallas

Dispozice domu Pallas je řešena netradičně a nahrává dvougeneračnímu využití domu. Vchodovými dveřmi se vstupuje do zádveří, které sousedí s technickou místností s prostorem pro pračku, sušičku i kompaktní jednotku (tepelné čerpadlo, ventilační jednotka s rekuperací a příprava teplé vody). Na zádveří navazuje vstupní chodba, z níž je přístup do obou obytných celků. Centrální částí domu, sousedící se vstupní chodbou na jedné straně, je obývací pokoj, propojený s prostornou kuchyní vybavenou ostrůvkem. Kuchyňskou část lze dodatečně rozšířit ještě o potravinovou skříň, kterou lze vybudovat v nevyužité části sousedící chodby.

Z obývací části lze posuvnými francouzskými dveřmi vyjít na terasu. Obývací pokoj sousedí s další chodbičkou, z níž je přístup do dvou ložnic a malé, plně vybavené koupelny se sprchovým koutem, vanou, umyvadlem a WC. Zbytek místností se nachází na druhé straně domu. Z propojovací chodby vedou dveře kromě obývacího pokoje také do malé pracovny a velké ložnice, která má vlastní šatnu a také plně vybavenou koupelnu se sprchovým koutem, umyvadlem a WC. Poslední místností v domě, je zvenku přístupný zahradní sklad, který lze využít na uložení sportovních či zahradních potřeb.

Vzhledem k relativně velké zastavěné ploše vyžaduje dům Pallas dostatečně široký pozemek. Nejvhodnější orientace vchodu domu, pro dosažení maximálních tepelných zisků, je na sever nebo na východ. Zahrada se zpravidla umisťuje na jižní nebo západní část pozemku.

Ke stažení
  • Katalogový list domu (PDF) Stáhnout
  • Ceník nízkoenergetických domů - dům k dokončení (PDF) Stáhnout
nízkoenergetické domy

Výhody nízkoenergetického domu

  • Řízené větrání a rekuperace
  • Kompletní typový projekt zdarma
  • Tepelné čerpadlo a podlahové topení

Co obsahuje dům k dokončení?

  • Základová deska
  • Hrubá stavba
  • Krov/střecha
  • Výplně

Jak probíhá stavba domu?

Více informací

Nezávazná poptávka domu

Všechny poskytnuté údaje jsou uchovávány a zpracovávány v souladu se zákonem č. 101/2000 Sb., o ochraně osobních údajů. Tazatel uděluje souhlas se zpracováním poskytnutých osobních údajů společnosti Liapor s.r.o., se sídlem č.p. 176, 357 35 Vintířov, IČ: 468 82 324, jakožto provozovateli webových stránek a to po dobu do odvolání souhlasu. Tazatel dále uděluje souhlas, aby osobní údaje byly zpracovány zpracovatelem, zejména společností Studio Fresh Net, s.r.o., případně dalšími pověřenými zpracovatelskými společnostmi, jež provozovatel pověří. Tazatel též potvrzuje, že se seznámil s právy dle § 11 a § 21 zákona č. 101/2000 Sb., tj. zejména že má právo přístupu k osobním údajům a právo na opravu těchto osobních údajů, blokování nesprávných osobních údajů, jejich likvidaci, atd. Udělení souhlasu je zcela dobrovolné a lze jej kdykoli bezplatně na adrese provozovatele odvolat. Více informací